华球手机版app是致力于打造绿色办公室华球手机版app,专注办公室华球手机版app设计的济南华球手机版app公司

济南办公室华球手机版app设计-济南华球手机版app公司-山东鲁工装饰设计有限公司

全国统一服务热线
0531-58763069



大家都在搜: 办公室华球手机版app 展厅华球手机版app 幼儿园华球手机版app 店铺华球手机版app 餐饮华球手机版app

列表页banner图
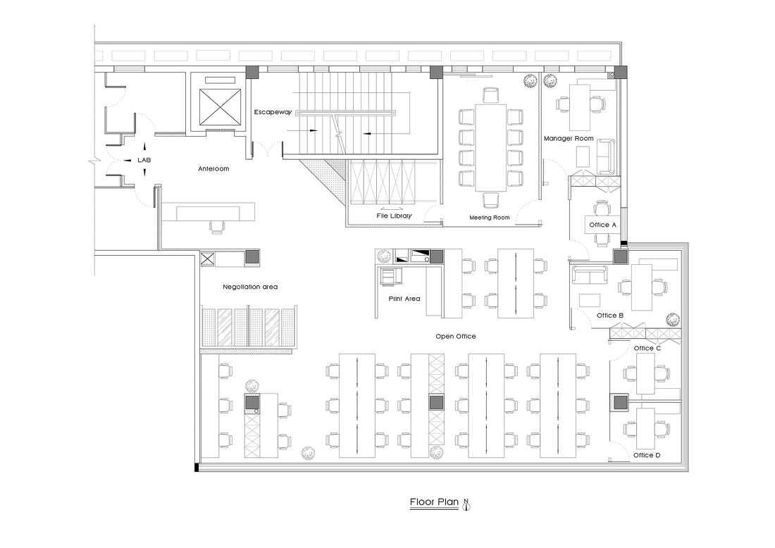
誉东健康研发中心-300m²办公室华球手机版app
文章作者:山东鲁工装饰 上传更新:2020/03/11

平面图

前厅

前台.jpg

前台

前台2.jpg

前台

休闲区

办公区

办公区

会议室

会客区

领导办公室

华球手机版app报价咨询
免费热线:
0531-58763069

电话:0531-58763069