济南写字楼华球手机版app-远大置业
文章作者:sdlgzs 上传更新:2017/11/24
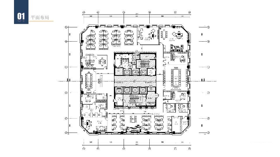
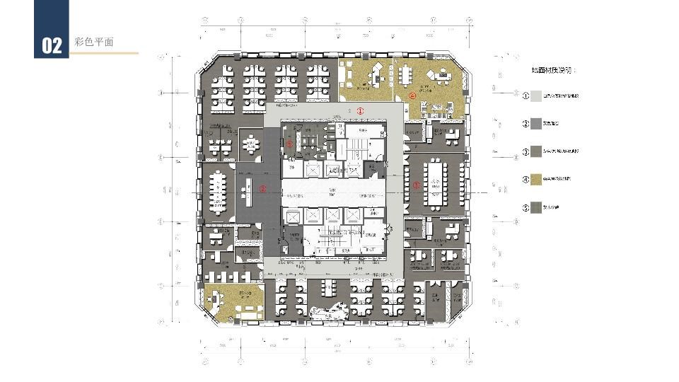
办公室作为一个公共的办公区域,对于灯光照明以及采光的要求都是非常高的,因此,我们在济南写字楼华球手机版app中必须要注意光线的设计规划,那么我们要从哪些方面着手呢?山东鲁工装饰的设计师在这里为您介绍一下济南办公室华球手机版app光线设计的效果图!















华球手机版app报价咨询
免费热线:
0531-58763069
0531-58763069
电话:0531-58763069

办公室作为一个公共的办公区域,对于灯光照明以及采光的要求都是非常高的,因此,我们在济南写字楼华球手机版app中必须要注意光线的设计规划,那么我们要从哪些方面着手呢?山东鲁工装饰的设计师在这里为您介绍一下济南办公室华球手机版app光线设计的效果图!















电话:0531-58763069